



1 od 4
Vojvođanska, Stara Bežanija, 2.5 dvoiposoban, 66.61 m²
Beograd | Opština Novi Beograd | Stara Bežanija
234.467 €3.520 €/m²
20
0
pre 14 dana
Osnovne informacije
Broj soba
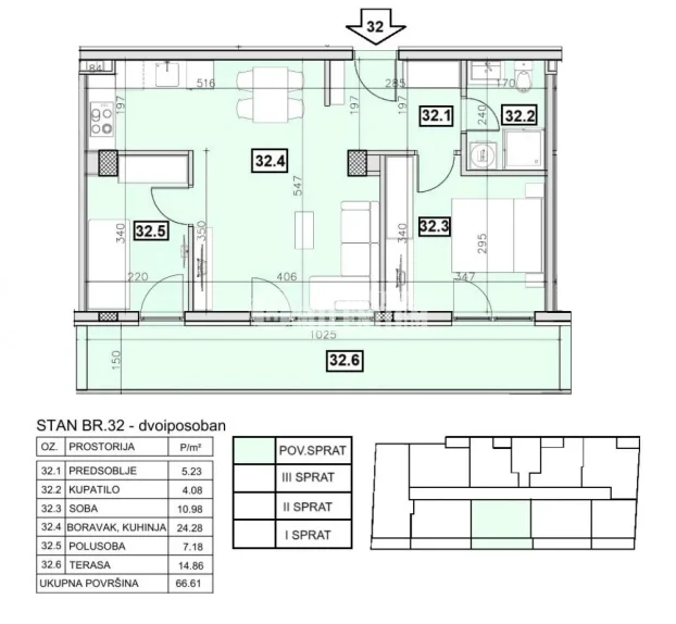
2.5 Dvoiposoban
Površina
66.61 m²
Vrsta gradnje
Novogradnja
Ukupna spratnost
4 sprata
Sprat
4
Nameštenost
Prazno
Grejanje
Centralno
Informacije o agenciji
Agencijski ID oglasa
2135
Opis oglasa
Na prodaju je moderan i funkcionalan stan na izuzetnoj lokaciji u srcu Novog Beograda, u odlično povezanoj Vojvođanskoj ulici.
Ovaj stan je idealan izbor za porodice, mlade parove ili kao investicija za izdavanje.
Vojvođanska ulica pruža savršen balans između urbanog života i komfora. U neposrednoj blizini nalaze se škole, vrtići, marketi, parkovi, sportski sadržaji i gradski prevoz,
što ovu lokaciju čini jednom od traženijih na Novom Beogradu.
Odličan raspored. Svetao i prostran prostor. Kvalitetna gradnja. Blizina svih ključnih sadržaja.
Cenu stana je izražena sa PDV-eom.
Zgrada useljiva do DECEMBRA 2026. Posrednička provizija u skladu sa uslovima poslovanja 2%
Broj u Registru posrednika: 1294